新闻动态
积极预防禽流感
绿色环保办公倡议书
近期我公司对施工材料进行突击检查工作
甘肃计划3年完成地震重灾区学校恢复重建
石河子市南山石场镇危桥加固工程正式开工
老07省道十八里桥维修加固工程开工
永新公路分局东门大桥加固维修工程开工
碳纤维加固-碳纤维布材料在我国建筑行业
老房子该如何加强抗震能力
 最新中标
北京市虎坊路幼儿园及分园加固改造工程中
 案例展示
元大都遗址公园加固改造工程

元大都遗址公园加固改造工程

1、工程前因:元大都最辉煌的宫殿,在被现代人开发后的又一个著名遗址公园,在整体修葺时需要对其中的框剪结构及原有木制结构进行改造、修葺,以保持其元朝时的风情人貌。

2、合同日期:一期工程:2002年8月11日

二期工程:2003年11月9日

三期工程:2005年2月25日

3、竣工日期

一期工程:2002年10月8日

一期工程:2003年12月30日

一期工程:2005年3月15日

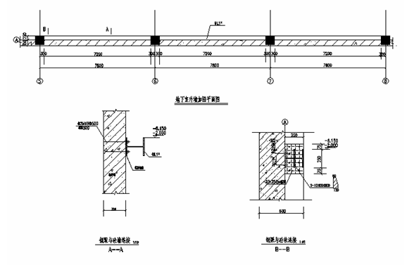
4、加固方案:对古建筑的加固,用普通的方法达到加固的目的。

5、主要表现工艺:

①水钻开洞及混凝土破碎

②粘贴碳纤维布及玻璃纤维布

③在木制结构上粘钢

④用植筋方法解决古建筑连接

⑤外立面挂古建筑物装饰,植筋连接;

⑥用湿式外包钢加固门洞

6、小结:

①这个工程中第一次采用纤维锚栓来固定原木制结构,而用高强砂浆粘合,很好的处理了老化问题。

②在重要的遗址公园中施工,工程管理非常重要,这次施工的项目经理的管理工作做的很好,得到了公司颁发的优秀管理奖项。值得在以后工作中做参考。

7.小品:甲方的某个人走过,“啊!这个门洞周边弄的是什么呀?”有人回答说是用粘钢方法做的加固处理,那怎么突出表面那么多,将来怎么装修?后来公司知道后,及时做了更正,将原来做的拆掉后,基层处理后将钢板粘贴上,保证了装修面与原来持平。在外面刷上涂料,看上去真的很漂亮,根本看不出有加固过。


上一篇:山海关火车站改造加固工程    下一篇:中华民族园加固改造工程
北京金博建筑加固公司 北京绳锯切割桥梁切割 北京博瑞达通工程加固 北京博瑞达通桥梁切割 北京辰龙桥梁切割建筑 北京拆除公司专业混凝 北京混凝土切割地面切 北京博瑞达通建筑加固 友情链接 友情链接 友情链接 友情链接 友情链接 友情链接 友情链接 友情链接 友情链接 友情链接 友情链接 友情链接 友情链接 友情链接 友情链接 友情链接

                   北京博瑞达通建设有限公司

公司简介 | 联系我们 | 人才招聘 | 广告说明
北京总公司: TEL: 13520881800  李经理   地址:北京市大兴区北臧村镇福兴路中路临72-2号

呼和浩特分公司:TEL:13520881800 李经理  地址:内蒙古呼和浩特市玉泉区昭君路88号居然之家1-702室

版权所有:博瑞达通 Copyright © 2008-2024 All Rights Reserved 禁止拷贝 翻版必究

     北京博瑞达通建设有限公司-建筑加固深基坑锚杆支护、地热孔、降水井、微型钢管桩、微型灌注桩、高压旋喷桩、基础喷锚支护 、长螺旋桩、旋挖桩、人工桩楼板及各种打桩工程, 楼房锚喷加固、粘钢加固、碳纤维加固、裂缝修复、山体地质灾害防护工程、小型基坑支护工程的设计与施工, 混凝土切割拆除破碎、墙体及楼板各种开洞工程、钢结构制作与安装工程。



北京网站制作公司 技术支持