| 北京某广场地下室加固(火灾后)
1 工程概况
北京某购物广场为框架剪力墙结构,原设计基准期限为50年,结构使用年限为50年;设计地震分组为第一组,抗震设防类别为丙类,属A级高度钢筋混凝土高层建筑、按6度抗震设防;风荷载:基本风压按50年重现期的风压值0.4Kn/㎡,地面粗糙度C类。
该建筑物原设计总建筑面积为3712.3m2,地下室梁、板、柱混凝土等级为C25,建筑物耐火等级为二级。建筑物于2005年建成投入使用 。
据调查地下室于2007年11月17下午6时发生火灾,火灾持续两小时。经我方实地勘察,地下室火灾属 A类火灾,地下室过火面积达70%左右,地下室梁、板、柱遭受不同程度的火灾破坏,局部结构承载能力降低较多,严重的已失去承载能力。
2 结构检测
2.1 检测内容
1、柱、梁、板的破坏情况。
2、结构整体和局部变形。
2.2 检测结论
本次建筑物的火灾,对建筑物整体造成的损害从表面上开来比较小;但由于火灾发生在建筑物的底部,对建筑物的底部承重结构造成了不同程的损害,使建筑物和住户的生命财产可能遭受次生灾害的程度大大提高。
按照上述建筑物受损程度评定,底部结构损害最严重的构件的损害程度达到了三级损伤。因此,对三级损伤构件进行重点修复和加固,对二级和一级损伤构件进行一般性修复和加固均能达到继续使用要求。
2.2 检测建议
按照上述勘察结果分析和结论,我们建议:
1)、对住宅楼下破坏严重的板拆除后重新浇筑。拆的过程中视梁的破坏情况,严重的拆除重新浇筑,达到强度后再进行粘钢加固处理,不严重的采用干式外包钢法进行加固。
2)、对受损较严重的承重柱采用软体预应力技术措施进行加固;
3)、对受损次严重的承重柱采用干式外包钢法进行加固;
4)、对受损次严重的梁、板采用粘贴纤维布法进行加固;
5)、对受损次严重的板采用对拉钢板,形成暗梁法进行加固;
6)、对仅粉刷层破坏的柱、梁、板进行一般性恢复性修复;
3 加固方案设计
由于,只对该火灾结构进行了现场勘察,而未进行详细的结构状况定量检测;所以,我们采取对于损伤严重的构件,按结构能力损失50%进行加固设计;损伤次严重的构件,按结构能力损失25%进行加固设计方法进行加固设计,并在设计中引入动态设计的理念,在结构功能的加固恢复过程中发现问题,及时调整加固方案。
3.1 加固平面布置
3.2 柱加固
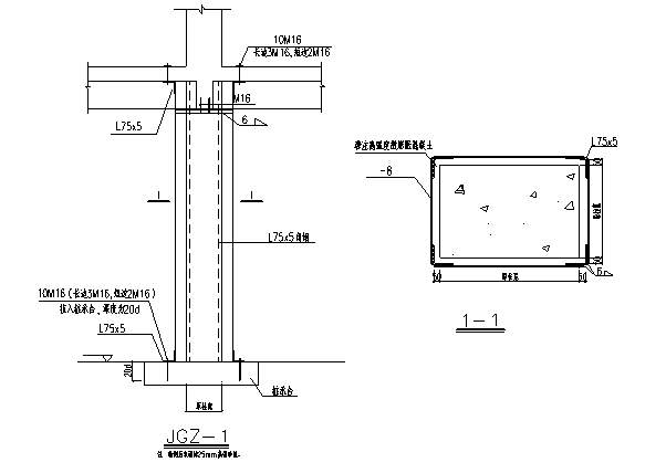
1)、软体预应力加固方案
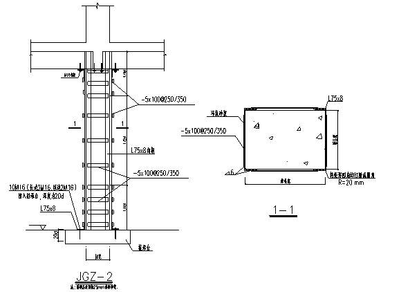
2)、干式外包钢加固方案

3.3 梁加固
1)、干式外包钢法加固方案
2)、纤维布加固方案
3.4 板加固
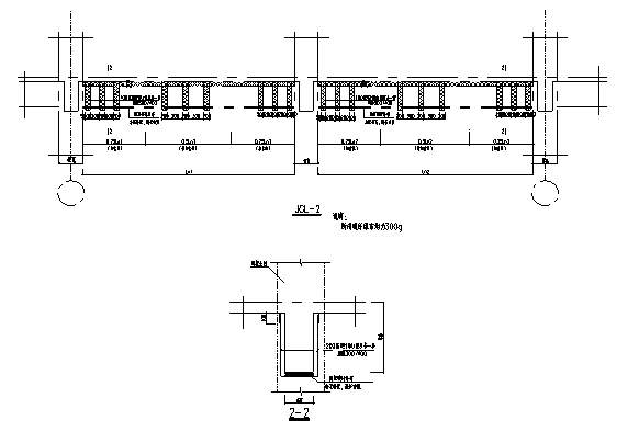
板加固采用破坏严重的板拆除后重新浇筑,对于破坏次严重的板,采用钢板对拉形成暗梁以便减少板跨的加固方案和纤维布板底受拉加固的方案。
1)、板拆除、恢复后加固方案

2)、板加固方案

4 结束语
本工程是针对火灾后建筑物加固改造的典型案例,为以后此类型工程的设计提供丰富的经验资料。
|