新闻动态
积极预防禽流感
绿色环保办公倡议书
近期我公司对施工材料进行突击检查工作
甘肃计划3年完成地震重灾区学校恢复重建
石河子市南山石场镇危桥加固工程正式开工
老07省道十八里桥维修加固工程开工
永新公路分局东门大桥加固维修工程开工
碳纤维加固-碳纤维布材料在我国建筑行业
老房子该如何加强抗震能力
 最新中标
北京市虎坊路幼儿园及分园加固改造工程中
 案例展示
北京国子监28号院加固工程

北京国子监28号院加固工程

1. 工程概况:某设计院办公楼建于20世纪70年代,结构为地下一层地上四层的砖混结构。经过对结构的鉴定,存在以下的问题:
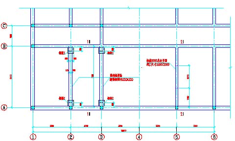
一:由于房屋长度较长,达54.5米,同时,楼板内钢筋配置较少。因此,楼板上出现较多的温度裂缝。见下图:

二:某些梁由于混凝土钢筋腐蚀,产生大量裂缝;另混凝土碳化程度过深,也削弱了梁的承载力。
2. 合同日期:2005年4月30日。
3. 竣工日期: 2005年5月26日。
4. 加固方案性质:承载力加固。
5. 主要表现工艺:

①采用化学灌浆修补温度裂缝;

②钢筋除修锈阻锈处理钢筋锈蚀;

③采用粘贴碳纤维加固板承载力不足;

④采用外粘型钢加固梁承载力不足;


6. 论点:①结构加固工艺种别复杂多样,程序管理细化程度高,充分利用工作面,合理的安排流水作业使工期得到良好的保证;
②设计院加固,示范效应突出,也可以说是给广大有加固改造需求的单位做出了样板工程;
③施工过程中,个别施工人员安全意识不过关,损坏甲方的网络电缆影响比较大,这一点是我们应该让我们警钟长鸣的:安全第一。

7.后记:在本次工程的施工工程中,现场技术人员在进行梁底碳纤维布粘贴时发现,混凝土碳化过深,粘贴纤维或钢板进行加固效果肯定不会达到设计要求。现场技术负责人及时和原设计进行沟通,共同到现场检测后。设计人员把原粘贴碳纤维的方案改为外包型钢加固,解决了安全隐患。从这个事件我们可以看出现场检测的重要性;另外在施工工作中,应该及时的发现问题,及时的反馈问题给设计人员更真实的资料,避免安全隐患的产生。 在这点上当时的施工人员应该是值得我们学习的。

上一篇:北京独栋别墅加固工程    下一篇:乐摩筑建筑加固工程
北京金博建筑加固公司 北京绳锯切割桥梁切割 北京博瑞达通工程加固 北京博瑞达通桥梁切割 北京辰龙桥梁切割建筑 北京拆除公司专业混凝 北京混凝土切割地面切 北京博瑞达通建筑加固 友情链接 友情链接 友情链接 友情链接 友情链接 友情链接 友情链接 友情链接 友情链接 友情链接 友情链接 友情链接 友情链接 友情链接 友情链接 友情链接

                   北京博瑞达通建设有限公司

公司简介 | 联系我们 | 人才招聘 | 广告说明
北京总公司: TEL: 13520881800  李经理   地址:北京市大兴区北臧村镇福兴路中路临72-2号

呼和浩特分公司:TEL:13520881800 李经理  地址:内蒙古呼和浩特市玉泉区昭君路88号居然之家1-702室

版权所有:博瑞达通 Copyright © 2008-2024 All Rights Reserved 禁止拷贝 翻版必究

     北京博瑞达通建设有限公司-建筑加固深基坑锚杆支护、地热孔、降水井、微型钢管桩、微型灌注桩、高压旋喷桩、基础喷锚支护 、长螺旋桩、旋挖桩、人工桩楼板及各种打桩工程, 楼房锚喷加固、粘钢加固、碳纤维加固、裂缝修复、山体地质灾害防护工程、小型基坑支护工程的设计与施工, 混凝土切割拆除破碎、墙体及楼板各种开洞工程、钢结构制作与安装工程。



北京网站制作公司 技术支持